Negozio in affitto

Serra Riccò, Piazza Padre Luigi Risso - Valleregia Chiesa
€ 900 / mese
5 locali 5 locali
297 Mq 297 Mq
2 bagni 2 bagni

Negozio in affitto

Serra Riccò, Piazza Padre Luigi Risso - Valleregia Chiesa

Descrizione annuncio

VALLEREGIA DI SERRA RICCO', PIAZZA PADRE LUIGI RISSO, RISTORANTE.

Siamo Valleregia, una frazione nel comune di Serra Riccò, immersa nel verde della bassa entroterra, inserita in una splendida e soleggiata cornice, e proponiamo in Locazone un Immobile Commerciale accatastato come C/1, Negozio, adibito a Ristorante-Pizzeria.

Ci troviamo più precisamente sulla piazza del Paese, esattamente difronte la Chiesa, in posizione dominate sulla vallata, in un luogo ideale per chi desidera trascorrere qualche ora nella tranquillità, senza allontanarsi troppo dal centro città, ideale anche per le famiglie.

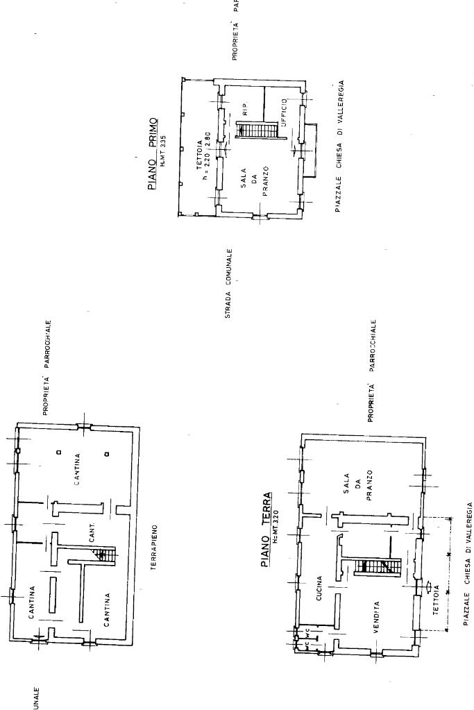
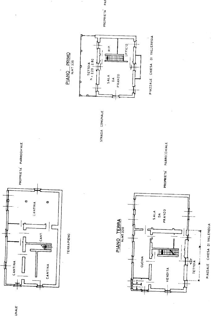
Si tratta di un immobile di ampia metratura, distribuiti su due livelli e suddivisi in diversi ambienti adibiti alle varie attività.

Giungendo il loco cattura immediatamente l'attenzione la bella veranda piastrellata, arredata di tavolini e sedie; ci accoglie poi in ingresso un grande spazio con bancone bar, da qui si accede all'ampia sala da pranzo (circa 68 Mq) ; troviamo a questo piano anche le due cucine, una per la ristorazione e una per la pizzeria, nonchè i servizi igienici .

Al piano di sopra l'immobile si sviluppa su una altrettanto ampia superficie di circa 75 Mq, arricchiti da una terrazza verandata di circa 29 Mq, che regala una splendita vista aperta sulla Vallata e rende gli spazi interni particolarmente arieggiati e luminosi e fornito di servizi igienici.

Il Ristorante conta una superficie totale di circa 297 Mq, e si presenta al suo interno in discrete condizioni che necessitano però di qualche intervento di ristrutturazione.

Mostra tutto

Nelle vicinanze

Trasporto pubblico Trasporto pubblico
Piano Orizzontale dei Giovi
Piano Orizzontale dei Giovi
2,7 Km
Mignanego
Mignanego
2,8 Km
Trasporto pubblico
560 m
Scuole Scuole
Scuola media Giuseppe Ungaretti
790 m
Scuole
2,9 Km
Farmacia Farmacia
Farmacia Dottor Laini
1,3 Km
Farmacia nuova
2,8 Km
Farmacia dei Giovi
2,8 Km
Bar Bar
Gilda Caffè
1,1 Km
Bar
1,2 Km
Ristoranti Ristoranti
Trattoria Lavagetto
600 m
Pizzoteca
1,1 Km
Ristoranti
1,3 Km
La Campora
1,8 Km
Antica Osteria La Nina
2,7 Km
Mostra tutto

Caratteristiche

Rif.:
61116204
Piano:
Su più livelli di 2
Totale piani:
2
Balconi:
1
Condizionamento:
Assente
Ascensore:
No
Mostra tutto
Prezzo Prezzo
€ 900 / mese

Classe Energetica

G
G
G
G
G
G
G
G
G
EP globale non rinnovabile:
0.00 kW h/m² anno
EP globale rinnovabile:
0.00 kW h/m² anno
EP invernale del fabbricato:
EP estiva del fabbricato:
Anno di costruzione:
1967
Riscaldamento:
Autonomo
Tipo impianto:
A radiatori
Tipo alimentazione:
Metano

Ti interessa visionare l'immobile?

Fissa un appuntamento  Fissa un appuntamento

Richiedi informazioni

* Questi campi sono obbligatori
Affiliato
Nuova Pontedecimo Sas
Via Fratelli Canepa, 22 16010 Serra Riccò (GE)

Il nostro staff


  • Francesco Salvetti
    Responsabile

  • Girolamo Deraco
    Affiliato
Via Fratelli Canepa, 22 16010 Serra Riccò (GE)
Zona: Valpocevera - Genova
Mostra su mappa
Orari: Dal Lunedi al Venerdi dalle ore 8:30 alle 12:30 e dalle 15:00 alle 19:30 Sabato dalle 08:30 alle 12:30 dalle 15:00 alle 17:30
Affiliato
Nuova Pontedecimo Sas
Via Fratelli Canepa, 22 16010 Serra Riccò (GE)

2025 Tecnocasa Franchising S.p.A. - P. IVA 08365160152 - Via Monte Bianco 60/A 20089 Rozzano (MI). Ogni agenzia ha un proprio titolare ed è autonoma. Privacy policy | Policy utilizzo | Cookie policy